https://chechilas.com/mashinsazi-atlasform/ماشین-سازی-اطلس-فرم
طرح آماده دروازه لوله و پروفیل در کرج
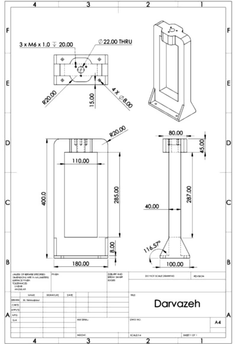
نقشه دروازه لوله و پروفیل مجموعه ماشینسازی اطلس فرم
مجموعه ماشینسازی اطلس فرم با سالها تجربه در طراحی و تولید ماشینآلات صنعتی، نقشه دروازه لوله و پروفیل را با بالاترین استانداردهای فنی و کیفیت ارائه میدهد. این محصول برای استفاده در صنایع مختلف از جمله ساختوساز، لولهکشی و تولید پروفیلهای فلزی طراحی شده است.
ویژگیهای کلیدی نقشه دروازه لوله و پروفیل:
- طراحی دقیق و مهندسیشده برای اطمینان از عملکرد بهینه
- سازگاری با انواع لولهها و پروفیلهای فلزی
- قابلیت استفاده در پروژههای صنعتی و عمرانی
- مقاومت بالا در برابر فشار و سایش
- امکان سفارشیسازی بر اساس نیاز مشتری
کاربردهای اصلی:
این نقشه دروازه برای نصب و راهاندازی سیستمهای لولهکشی، خطوط انتقال سیالات و ساخت سازههای فلزی کاربرد دارد. با استفاده از این محصول، امکان اجرای دقیق و سریع پروژههای صنعتی فراهم میشود.
مزایای انتخاب محصول از ماشینسازی اطلس فرم:
تولید با استفاده از فناوریهای پیشرفته و مواد اولیه مرغوب، پشتیبانی فنی حرفهای و خدمات پس از فروش مطمئن از جمله مزایای این محصول است. مجموعه اطلس فرم همواره در تلاش است تا با ارائه راهکارهای مهندسی، نیازهای مشتریان را به بهترین شکل برطرف کند.
برای دریافت اطلاعات بیشتر و مشاوره تخصصی، با کارشناسان ما تماس بگیرید.
مجموعه ماشینسازی اطلس فرم با سالها تجربه در طراحی و تولید ماشینآلات صنعتی، نقشه دروازه لوله و پروفیل را با بالاترین استانداردهای فنی و کیفیت ارائه میدهد. این محصول برای استفاده در صنایع مختلف از جمله ساختوساز، لولهکشی و تولید پروفیلهای فلزی طراحی شده است.
ویژگیهای کلیدی نقشه دروازه لوله و پروفیل:
- طراحی دقیق و مهندسیشده برای اطمینان از عملکرد بهینه
- سازگاری با انواع لولهها و پروفیلهای فلزی
- قابلیت استفاده در پروژههای صنعتی و عمرانی
- مقاومت بالا در برابر فشار و سایش
- امکان سفارشیسازی بر اساس نیاز مشتری
کاربردهای اصلی:
این نقشه دروازه برای نصب و راهاندازی سیستمهای لولهکشی، خطوط انتقال سیالات و ساخت سازههای فلزی کاربرد دارد. با استفاده از این محصول، امکان اجرای دقیق و سریع پروژههای صنعتی فراهم میشود.
مزایای انتخاب محصول از ماشینسازی اطلس فرم:
تولید با استفاده از فناوریهای پیشرفته و مواد اولیه مرغوب، پشتیبانی فنی حرفهای و خدمات پس از فروش مطمئن از جمله مزایای این محصول است. مجموعه اطلس فرم همواره در تلاش است تا با ارائه راهکارهای مهندسی، نیازهای مشتریان را به بهترین شکل برطرف کند.
برای دریافت اطلاعات بیشتر و مشاوره تخصصی، با کارشناسان ما تماس بگیرید.
ماشین سازی اطلس فرم
تهران -
تهران
موسی نوروزپور
آدرس
تهران,
تهران, باقرشهر، جاده قمصر، مجتمع صنعتی فرخی، خیابان کیش، جزیره1، پلاک 8
راه های ارتباطی